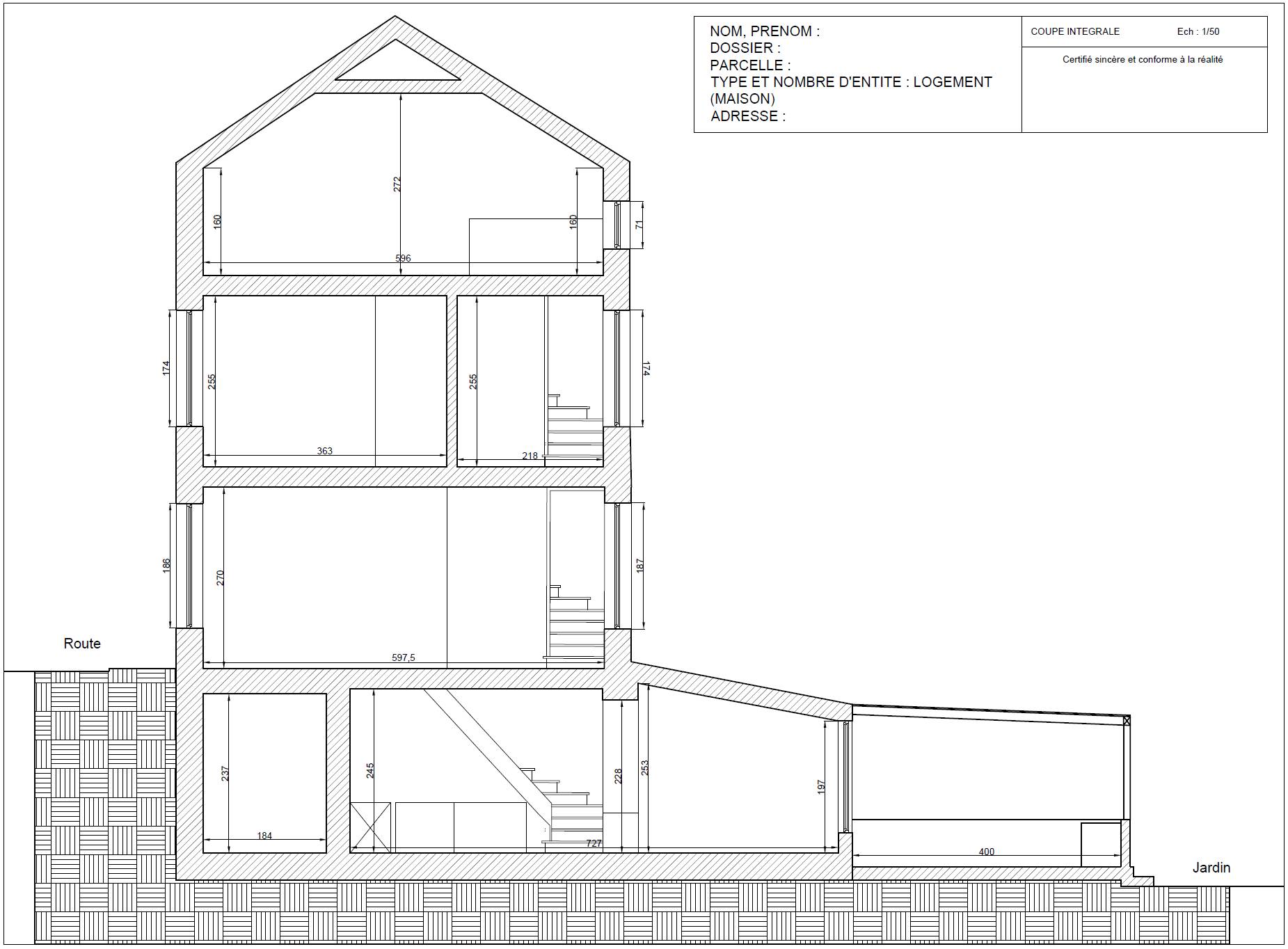
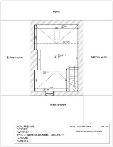
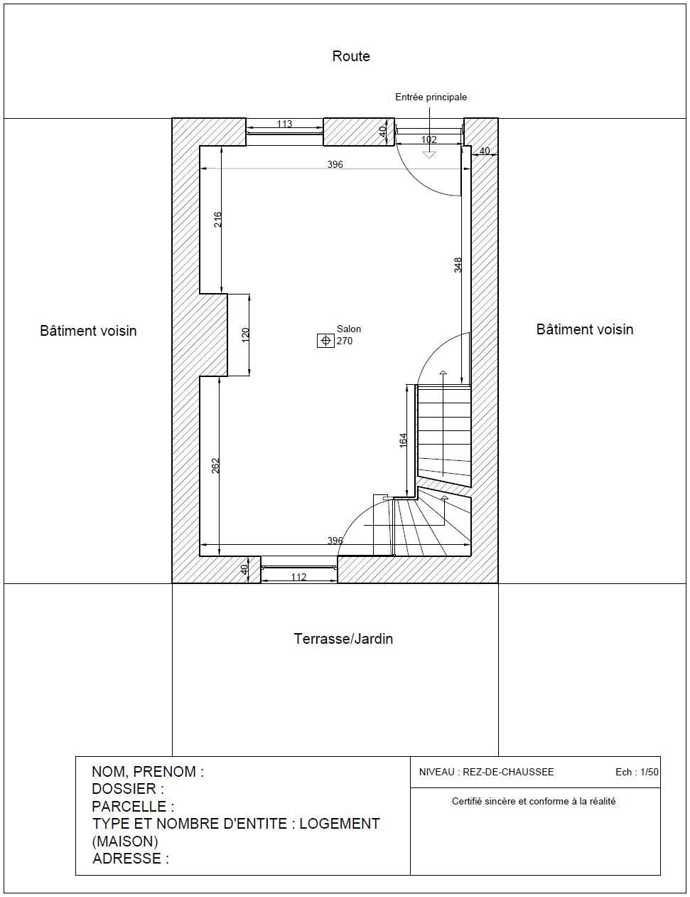
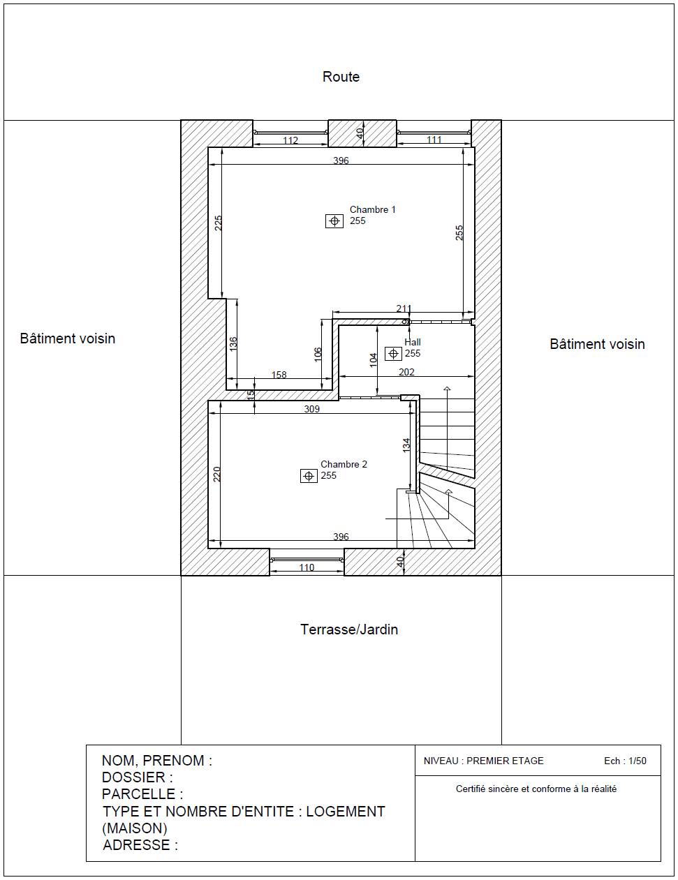
Mesurage et plan maison 2 façades


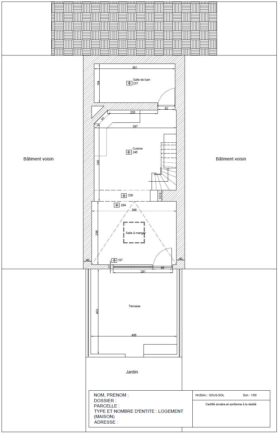
Dans le but d’une vente, un particulier devait fournir à l’administration communale des plans détaillé du bien.
J’ai donc réalisé les plans et une coupe avec toutes les informations exigées par la commune.




En pratique

Qui suis-je ?


Me contacter

+32 (471) 50 49 11
h.dorys@hd-archi.be